© Inženiring 4M 2016
domov projekti natečaji kontakt
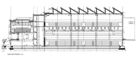
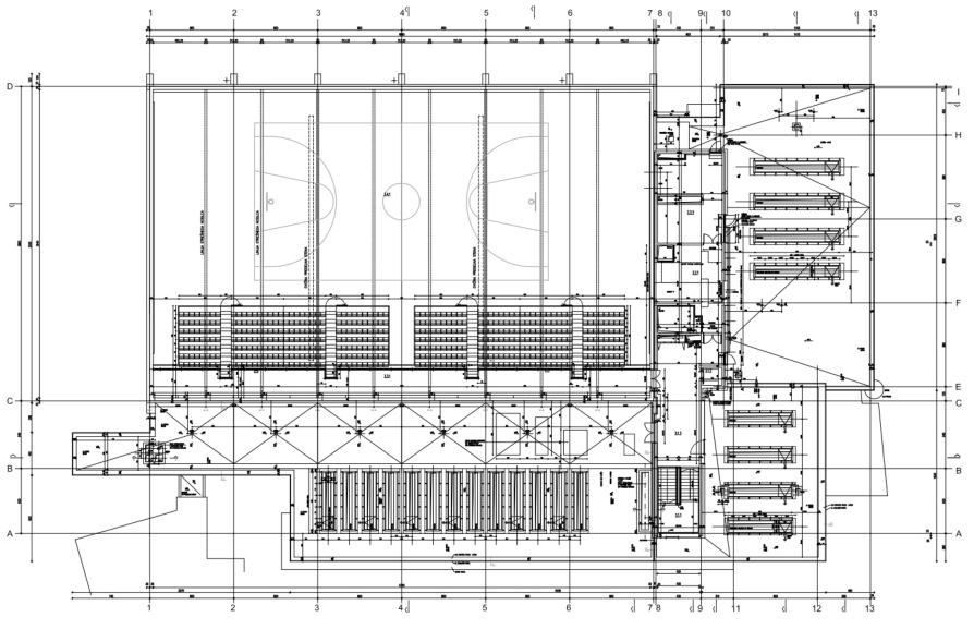
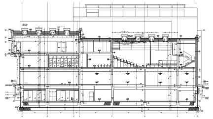
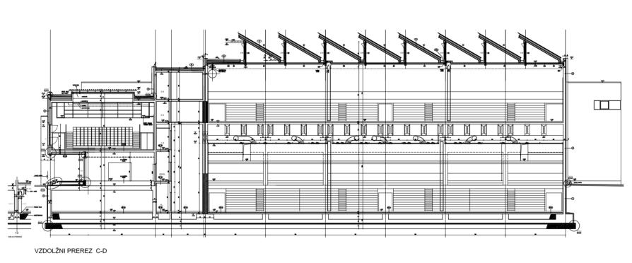
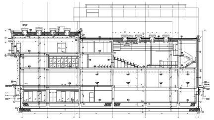
ŠPORTNA DVORANA NOVA GORICA
Lokacija: Nova Gorica Avtor Boštjan Kolenc, u.d.i.a. arhitektonske rešitve: Mladen Marinčič, u.d.i.a. Leto načrta: 1995 Leto dokončanja stavbe: 1995 Investitor: MO Nova Gorica Netto površina stavbe: 7.000 m2 Etažnost: K + P + 2
INŽENIRING
© Inženiring 4M d.o.o. 2016
domov projekti natečaji kontakt
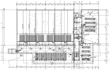
ŠPORTNA DVORANA NOVA GORICA
Lokacija: Nova Gorica Avtor Boštjan Kolenc, u.d.i.a. arhitektonske rešitve: Mladen Marinčič, u.d.i.a. Leto načrta: 1995 Leto dokončanja stavbe: 1995 Investitor: MO Nova Gorica Netto površina stavbe: 7.000 m2 Etažnost: K + P + 2
INŽENIRING