© Inženiring 4M 2016
domov projekti natečaji kontakt
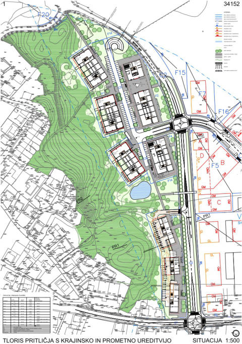
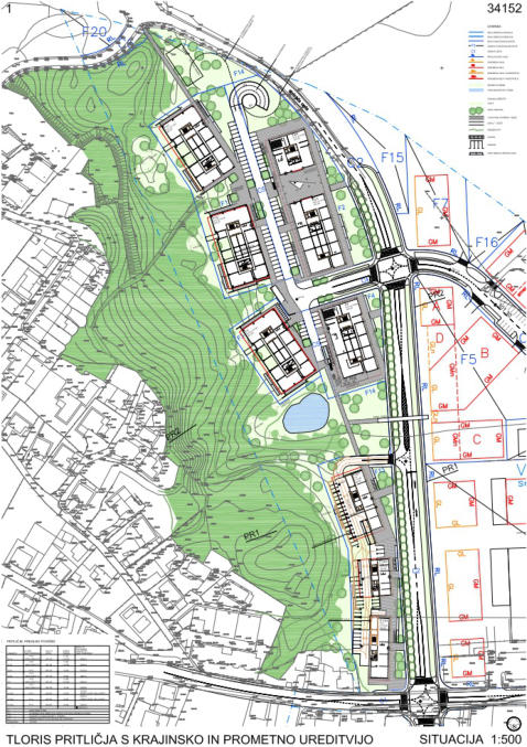
TEHNOLOŠKI PARK LJUBLJANA
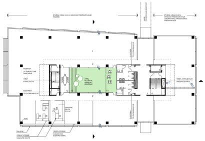
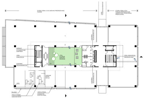
Lokacija: Ljubljana Avtor arhitektonske rešitve: Boštjan Kolenc, u.d.i.a. Leto načrta: 2007-2012 Leto dokončanja stavbe: 2014 Investitor: Tehnološki park Ljubljana d.o.o. Netto površina stavbe: 44.268 m2 Etažnost: K + P + 3 Rob gozda, travniki, voda; to je naravno okolje v katerem je bilo potrebno na relativno majhni gradbeni parceli zgraditi objekta dveh fakultet in objekt namenjen skupni rabi, zagotoviti parkiranje precejšnemu številu vozil in obenem ohraniti še sprejemljivo razmerje med okoljem in zgradbami. Kompozicijo sestavljajo trije stavbni volumni, ki jih povezuje med seboj povezovalni hodnik na nivoju 4.50 m nad terenom. Objekt FKKT je oblikovan kot meander treh objektov med seboj tesno v celoto povezanih z vzdolžno hrbtenico. Objekt FRI je dokaj monoliten volumen postavljen na rob parcele, tako da sprosti v največji meri skupen osrednji prostor obeh fakultet. Ta prostor v podaljšku osi že zgrajene dostopne "aleje" se na drugi strani poveže na smer proti Tehnološkemu parku. V tem sproščenem prostoru, neobremenjenem z podzemnimi parkirnimi prostori in ploščadmi nad njimi, je lociran skupen, oblikovno drugačen objekt obeh fakultet s centralnim vhodom, velikima predavalnicama, knjižnico in restavracijo – objekt X.
INŽENIRING
© Inženiring 4M d.o.o. 2016
domov projekti natečaji kontakt
TEHNOLOŠKI PARK LJUBLJANA
Lokacija: Ljubljana Avtor arhitektonske rešitve: Boštjan Kolenc, u.d.i.a. Leto načrta: 2007-2012 Leto dokončanja stavbe: 2014 Investitor: Tehnološki park Ljubljana d.o.o. Netto površina stavbe: 44.268 m2 Etažnost: K + P + 3
INŽENIRING